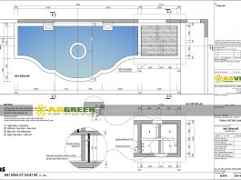
Thiết kế & thi công cảnh quan sân vườn 380m2 –...
Chi tiết dự án
Thiết kế phương án kiến trúc cải tạo ngoại thất, cảnh quan sân vườn, hồ cá Koi
Chủ đầu tư : Anh Thành
Địa điểm...
Thiết kế thi công hồ koi, cảnh quan sân vườn –...
Mô tả dự án
Thiết kế thi công hồ koi, cảnh quan sân vườn theo phong cách hiện đại sang trọng
Chi tiết dự án
Loại dự án:...
Thiết kế cảnh quan sân vườn, hồ Koi – Mr Minh,...
Mô tả dự án
Dự án thiết kế cảnh quan sân vườn, hồ cá Koi nhà anh Minh ở Linh Đàm, Hà Nội
Chi tiết dự...
Hồ Koi gia đình – Mr Hùng, Tây Hồ, Hà Nội
Mô tả dự án
Hồ koi gia đình Mr. Hùng, Lạc Long Quân, Tây Hồ, Hà Nội. Tâm tư nguyện vọng của khách hàng rất...
Thiết kế hồ cá koi, tiểu cảnh trong nhà – Mr...
Mô tả dự án
Bên cạnh những bể cá, hồ cá nhiều màu sắc thì nhiều gia đình còn thiết kế cả một hệ thống...








